Dettaglio immobile

AMPIO EDIFICIO A BIACESA DA RISTRUTTURARE AMPIO EDIFICIO A BIACESA DA RISTRUTTURARE

Ledro (fraz. Biacesa)

AMPIO EDIFICIO A BIACESA DA RISTRUTTURARE

Location: Ledro (fraz. Biacesa)
Indirizzo: Via Francesco Arcioni, 20
Prezzo:250.000 €
Mq comm.:
843 m 2

Descrizione

Edificio “cielo-terra” da ristrutturare nel centro storico di Biacesa, a soli 8 km da Riva del Garda. 
Ampie metrature con possibilità di ricavare fino a n. 8 appartamenti.
Sup. lorda per piano superiore ai 200 mq. 

L'immobile si sviluppa per cinque livelli fuori terra e, attualmente, si articola come segue:
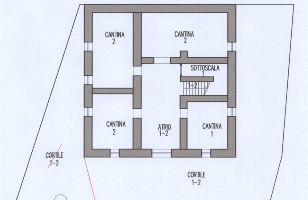
- Piano seminterrato: cortile a sud e pianeggiante di oltre 200 mq, n. 4 cantine, atrio e sottoscala;
- Piano rialzato: atrio e corridoio d'ingresso, magazzino, saletta, vecchio bar con cucina, terrazza;
- Piano primo: corridoio d'ingresso, n. 2 cucine e n. 3 stanze;
- Piano secondo: disimpegno, soggiorno, n. 2 cucine, n. 4 stanze;
- Piano sottotetto: unico ampio spazio interamente abitabile.

Possibilità di acquistare un terreno confinante con piscina. 

Ideale anche per ricavare attività di Bed and Breakfast / Affittacamere.
Per qualsiasi richiesta o dubbio non esitare a contattarci. 

Per info e visite:
Aedes Immobili

Caratteristiche

Locali
21

Piani edificio
5

Anno
1950

C.E.
G

Altre caratteristiche

ARREDI: Non Arredato
BALCONI: No
GIARDINO: Privato
PIANO: Su Più Livelli
RISCALDAMENTO: Assente
STATO IMMOBILE: Da Ristrutturare
ASCENSORE: No
POSTI AUTO: Si
GARAGE: No
TERRAZZE: uno

Compila il form sottostante per ricevere ulterioni informazioni

per favore inserisci un nome valido.
per favore inserisci un cognome valido.
per favore inserisci un email valida.
per favore inserisci un telefono valido.
accetta le condizioni sulla privacy per procedere.

*Campi obbligatori

Dove operiamo?
Valle di Ledro e Lago di Garda

Incontaminata bellezza alpina e atmosfera mediterranea.

Aedes Immobili - Vendita e affitto immobili in Valle di Ledro e Lago di Garda