Dettaglio immobile

VENDITA EDIFICIO CIELO-TERRA NEL CUORE DI CONDINO VENDITA EDIFICIO CIELO-TERRA NEL CUORE DI CONDINO

Borgo Chiese (fraz. Condino)

VENDITA EDIFICIO CIELO-TERRA NEL CUORE DI CONDINO

Descrizione

Nel suggestivo centro storico di Condino, nel comune di Borgo Chiese, proponiamo in vendita edificio cielo-terra di origine storica, completamente da ristrutturare, inserito in un contesto autentico, tranquillo e di forte valore identitario.
L’immobile si sviluppa su quattro livelli fuori terra e si distingue per la pianta regolare e la buona metratura, caratteristiche che ne facilitano il recupero e la valorizzazione.
Grazie alla possibilità di sopraelevazione del piano sottotetto, l’edificio si presta in modo ideale alla realizzazione di più unità abitative indipendenti, rendendolo una soluzione interessante sia per uso residenziale che per investimento.
A completamento della proprietà, ampio cortile pianeggiante di pertinenza e garage, elementi di pregio rari nel contesto del centro storico.

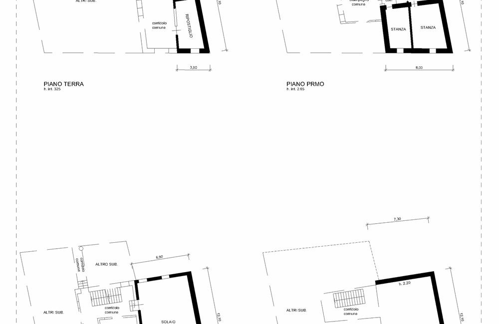
Distribuzione attuale degli spazi:
• Piano terra: ampio corridoio d’ingresso, ripostiglio e cantina; bagno collocato al piano mezzanino;
• Piano primo: corridoio d’ingresso, due stanze, cucina e bagno;
• Piano secondo: ampio locale unico attualmente adibito a soffitta;
• Piano terzo: soppalco recuperabile a fini abitativi.

Pertinenze:
• Cortile pianeggiante situato frontalmente all’edificio, di circa 258 mq;
• Garage di circa 20 mq utili.

Contesto e posizione:
La proprietà è immersa nella splendida cornice naturale del Trentino, a pochi minuti dal Lago di Idro e in posizione strategica rispetto alle Dolomiti di Brenta, con facile accesso a Pinzolo e Madonna di Campiglio.

Un immobile dalle grandi potenzialità di recupero, ideale per chi ricerca un progetto di valorizzazione in un borgo storico ricco di fascino.

Planimetrie

Caratteristiche

Locali
7

Camere
2

Bagni
2

Piani edificio
4

Anno
1950

C.E.
G

Altre caratteristiche

BALCONI: No
GIARDINO: Privato
PIANO: Su Più Livelli
RISCALDAMENTO: Assente
STATO IMMOBILE: Da Ristrutturare
TIPO CUCINA: Abitabile
ASCENSORE: No
POSTI AUTO: No
GARAGE: Singolo
TERRAZZE: No
CANTINA: Si
CAMINO: Si

Compila il form sottostante per ricevere ulterioni informazioni

per favore inserisci un nome valido.
per favore inserisci un cognome valido.
per favore inserisci un email valida.
per favore inserisci un telefono valido.
accetta le condizioni sulla privacy per procedere.

*Campi obbligatori

Dove operiamo?
Valle di Ledro e Lago di Garda

Incontaminata bellezza alpina e atmosfera mediterranea.

Aedes Immobili - Vendita e affitto immobili in Valle di Ledro e Lago di Garda